Alle Fotos anzeigen
HELL & FREUNDLICH WOHNEN 🌿 Charmante 4-Zimmer-Wohnung mit Terrasse in Hösbach!
63768 Hösbach
279.000,00 €
Verkaufspreis
107 m²
Wohnfläche
4 Zimmer
Anzahl Zimmer
Objektbeschreibung
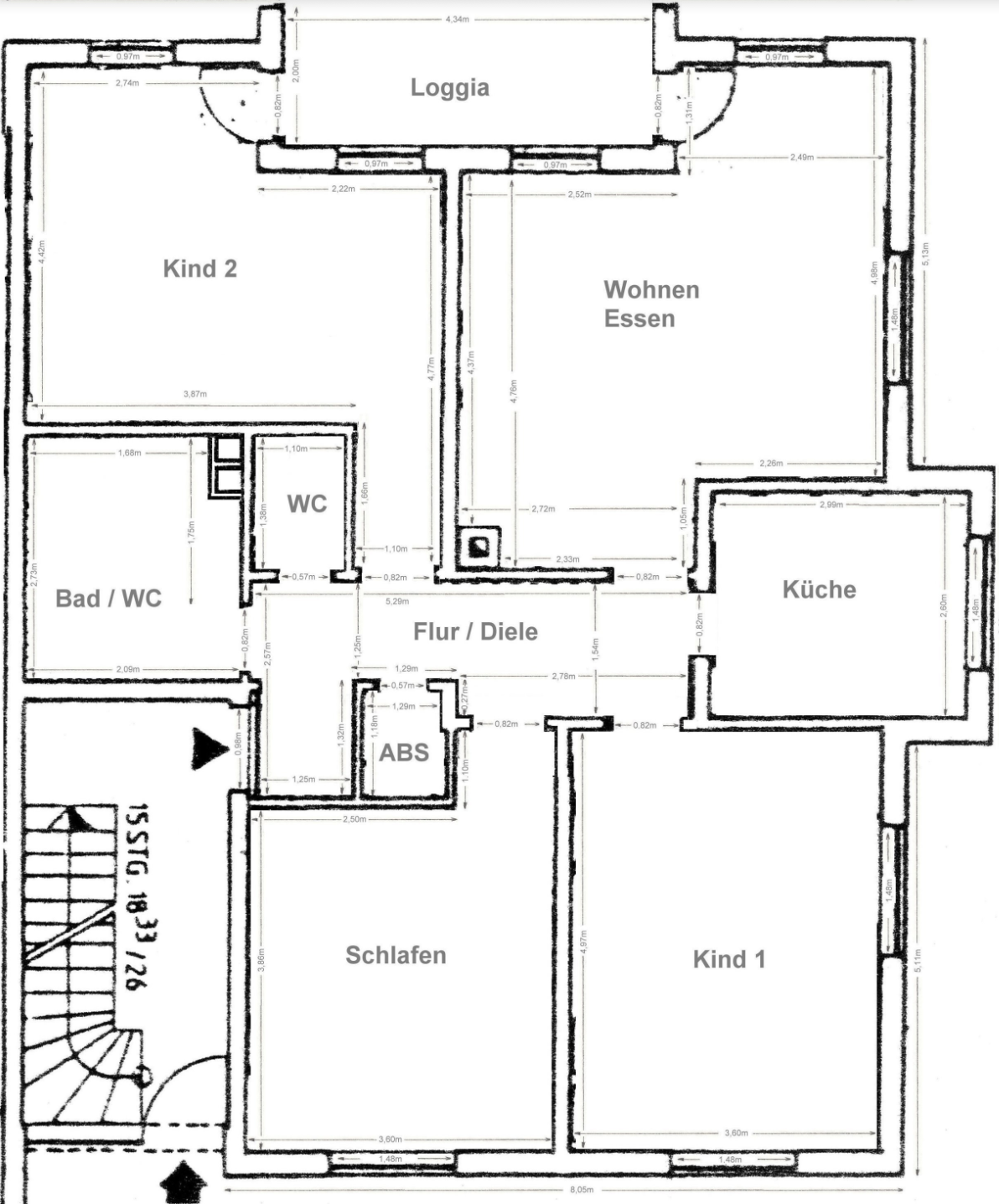
Diese 4-Zimmer-Wohnung im Erdgeschoss eines gepflegten Mehrfamilienhauses überzeugt mit ca. 107 m² Wohnfläche, einer funktionalen Raumaufteilung und einem herrlich lichtdurchfluteten Wohnambiente. Ob als Familiendomizil oder großzügiges Zuhause für Paare – hier genießen Sie viel Platz und ein angenehmes Wohngefühl.
Der Grundriss bietet drei gut geschnittene Schlafzimmer, ein geräumiges Wohnzimmer, ein Badezimmer sowie ein separates Gäste-WC. Besonders schön: die überdachte Terrasse, die sich harmonisch in den Wohnbereich integriert und Ihnen einen geschützten Außenraum zum Entspannen bietet.
Die praktische Einbauküche direkt nutzbar – ideal für alle, die ohne großen Aufwand einziehen möchten.
In der Anlage stehen zahlreiche Parkmöglichkeiten für Sie und Ihre Gäste zur Verfügung.
Diese Wohnung überzeugt durch Großzügigkeit, Helligkeit und ein solides Wohnumfeld – eine ideale Gelegenheit für alle, die nach einem ruhigen und durchdachten Zuhause mit Potenzial suchen.
Vereinbaren Sie jetzt einen Besichtigungstermin und überzeugen Sie sich selbst!
Der Grundriss bietet drei gut geschnittene Schlafzimmer, ein geräumiges Wohnzimmer, ein Badezimmer sowie ein separates Gäste-WC. Besonders schön: die überdachte Terrasse, die sich harmonisch in den Wohnbereich integriert und Ihnen einen geschützten Außenraum zum Entspannen bietet.
Die praktische Einbauküche direkt nutzbar – ideal für alle, die ohne großen Aufwand einziehen möchten.
In der Anlage stehen zahlreiche Parkmöglichkeiten für Sie und Ihre Gäste zur Verfügung.
Diese Wohnung überzeugt durch Großzügigkeit, Helligkeit und ein solides Wohnumfeld – eine ideale Gelegenheit für alle, die nach einem ruhigen und durchdachten Zuhause mit Potenzial suchen.
Vereinbaren Sie jetzt einen Besichtigungstermin und überzeugen Sie sich selbst!
Ausstattung
- doppelt-verglaste Fenster
- Einbauküche
- Badezimmer mit Duschwanne
- Gäste-WC
- Abstellkammer
- Terrasse
- Waschküche
- massive Bauweise
- Einbauküche
- Badezimmer mit Duschwanne
- Gäste-WC
- Abstellkammer
- Terrasse
- Waschküche
- massive Bauweise
