Alle Fotos anzeigen
STARKE KAPITALANLAGE đ 2 Mehrfamilienhäuser mit insgesamt 5 Wohneinheiten in Dreieich!
63303 Dreieich
957.000,00 âŹ
Verkaufspreis
280 m²
Wohnfläche
14 Zimmer
Anzahl Zimmer
Objektbeschreibung
Diese vielseitige Immobilie in Dreieich umfasst zwei Mehrfamilienhäuser mit insgesamt 14 Zimmern und fĂźnf Bädern auf ca. 280 m² Wohnfläche. Das 330 m² groĂe GrundstĂźck bietet eine Garage, ein Carport sowie einen AuĂenstellplatz. Die Immobilie wurde zuletzt 2024 modernisiert und befindet sich in einem teilsanierten Zustand.
Das Vorderhaus verfĂźgt Ăźber drei Wohneinheiten:
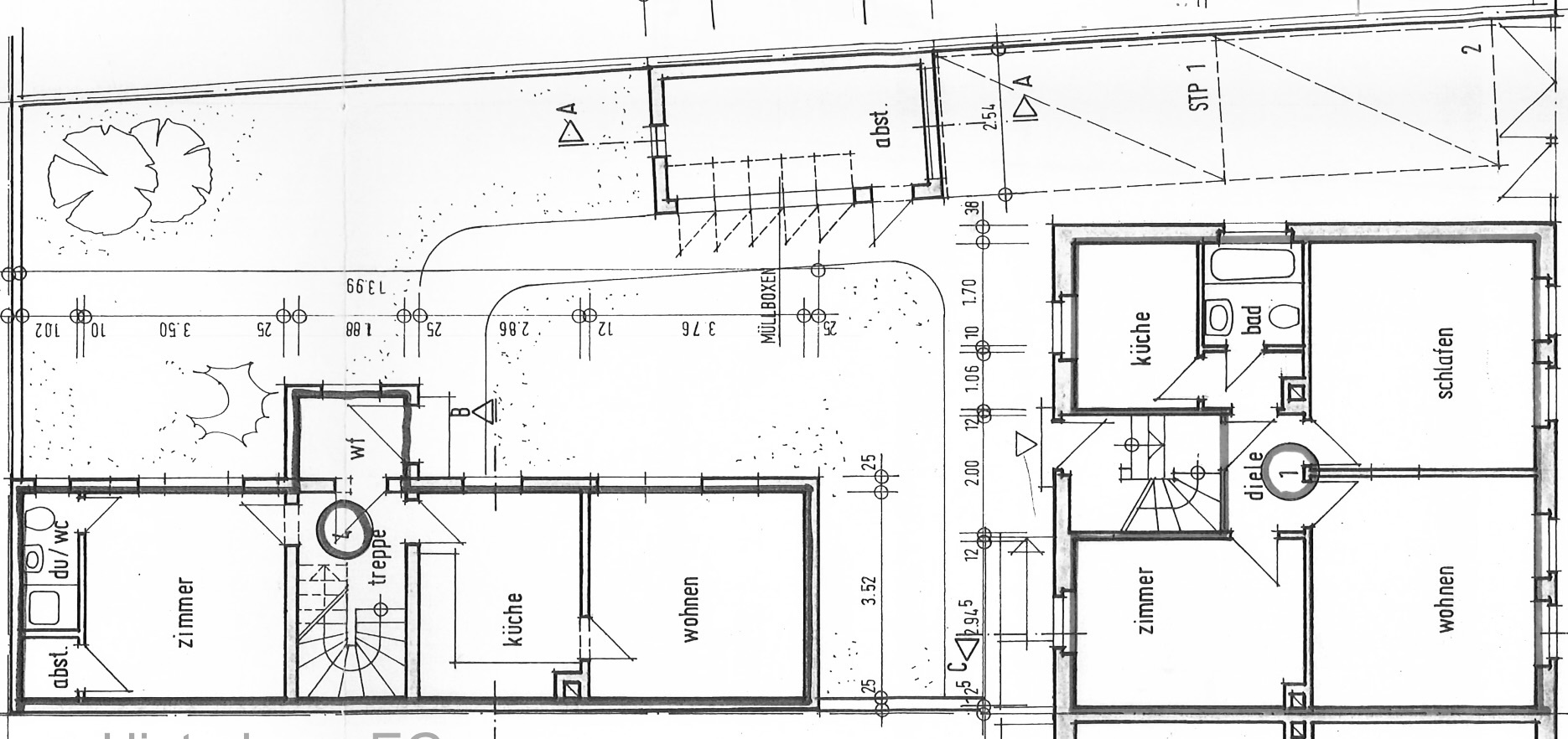
Erdgeschoss: 3-Zimmer-Wohnung mit Kßche und Bad (ca. 58 m²)
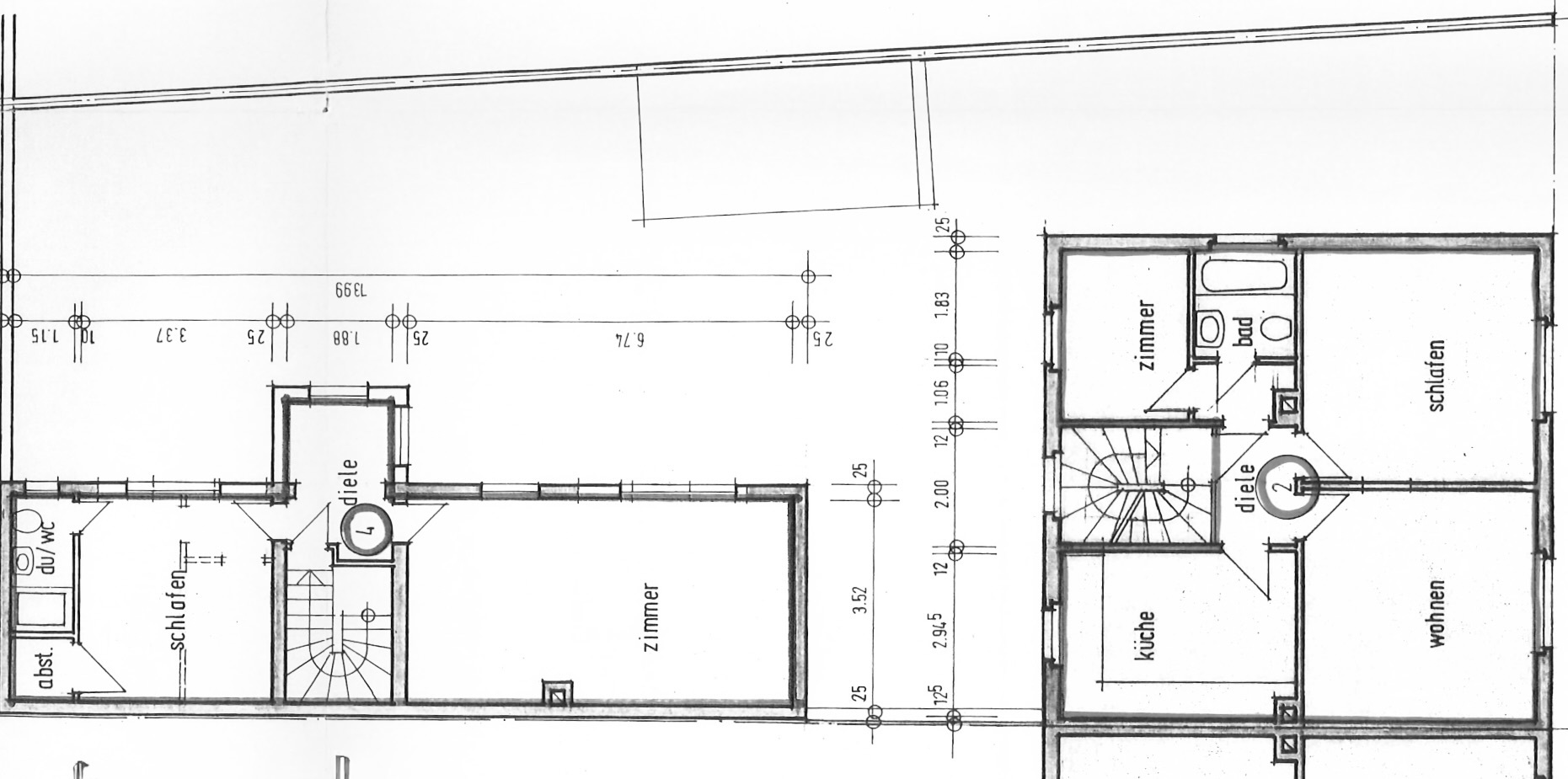
Obergeschoss: 3-Zimmer-Wohnung mit Kßche und Bad (ca. 58 m²)
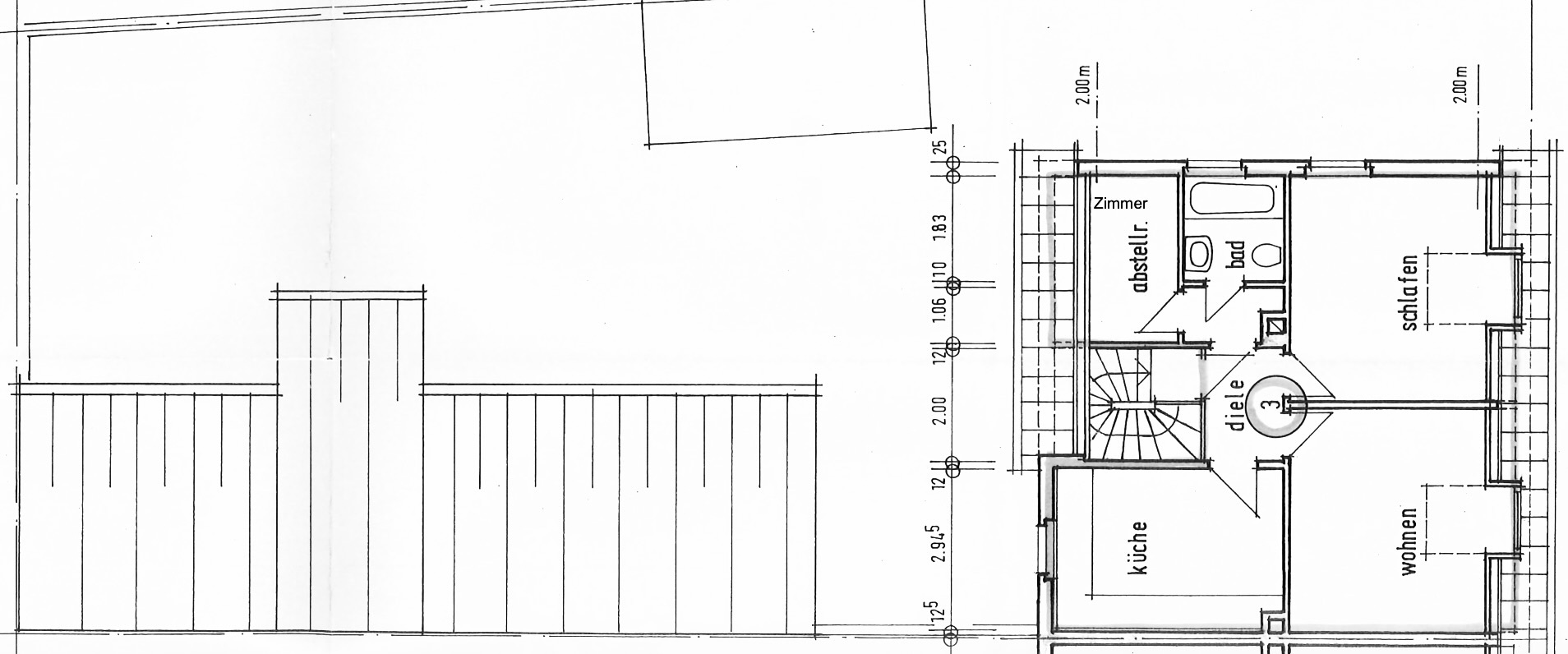
Dachgeschoss: 3-Zimmer-Wohnung mit Kßche und Bad (ca. 49 m²)
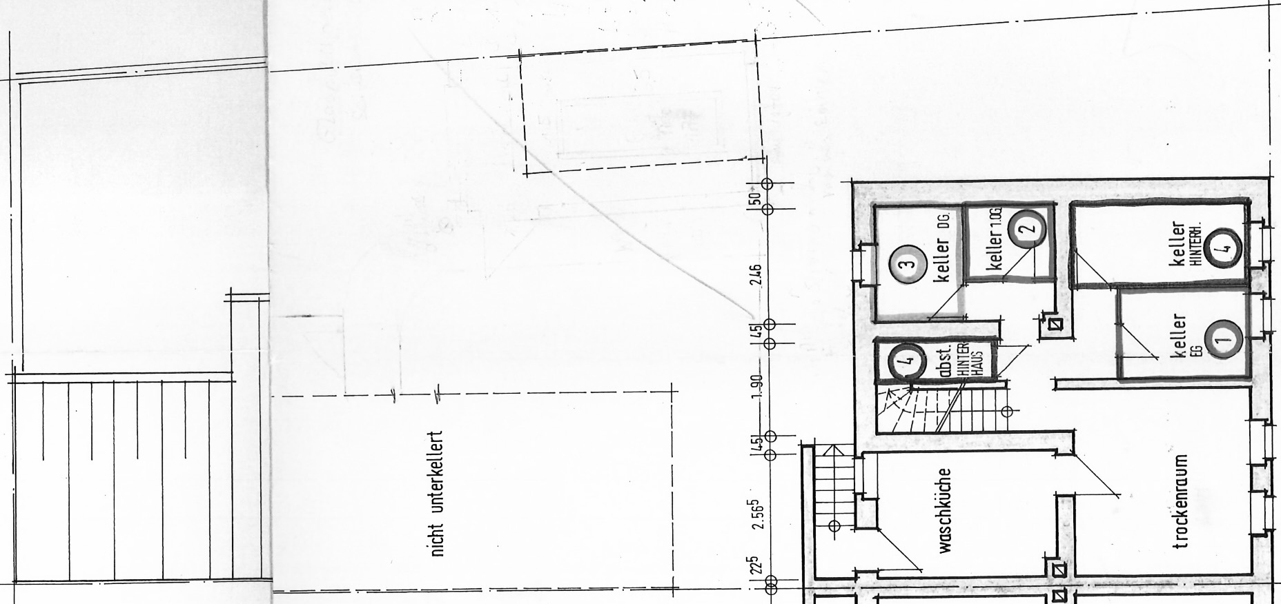
Zusätzlich bietet das vollständig unterkellerte Vorderhaus rund 65 m² Nutzfläche mit einem Waschraum, einem Trockenraum und weiteren Kellerräumen.
Im Hinterhaus erstreckt sich eine zweigeschossige Wohneinheit mit vier Zimmern auf ca. 100 m².
Jede Wohneinheit verfĂźgt Ăźber ein eigenes Grundbuchblatt und kann bei Bedarf separat veräuĂert werden. Die Immobilie wird mietfrei Ăźbergeben und stellt eine hervorragende Gelegenheit fĂźr Kapitalanleger oder Eigennutzer dar, die eine flexible NutzungsmĂśglichkeit in attraktiver Lage suchen.
Vereinbaren Sie einen Termin zur Besichtigung und Ăźberzeugen Sie sich selbst!Â
Das Vorderhaus verfĂźgt Ăźber drei Wohneinheiten:
Erdgeschoss: 3-Zimmer-Wohnung mit Kßche und Bad (ca. 58 m²)
Obergeschoss: 3-Zimmer-Wohnung mit Kßche und Bad (ca. 58 m²)
Dachgeschoss: 3-Zimmer-Wohnung mit Kßche und Bad (ca. 49 m²)
Zusätzlich bietet das vollständig unterkellerte Vorderhaus rund 65 m² Nutzfläche mit einem Waschraum, einem Trockenraum und weiteren Kellerräumen.
Im Hinterhaus erstreckt sich eine zweigeschossige Wohneinheit mit vier Zimmern auf ca. 100 m².
Jede Wohneinheit verfĂźgt Ăźber ein eigenes Grundbuchblatt und kann bei Bedarf separat veräuĂert werden. Die Immobilie wird mietfrei Ăźbergeben und stellt eine hervorragende Gelegenheit fĂźr Kapitalanleger oder Eigennutzer dar, die eine flexible NutzungsmĂśglichkeit in attraktiver Lage suchen.
Vereinbaren Sie einen Termin zur Besichtigung und Ăźberzeugen Sie sich selbst!Â
Ausstattung
- 2 Mehrfamilienhäuser mit insgesamt 4 Wohneinheiten
- mietfreie Ăbergabe
- vollständig unterkellert (Vorderhaus, ca. 65 m²) mit Waschraum, Trockenraum, Kellerräumen
- Garage
- Carport
- Stellplatz
EINHEITEN:
Vorderhaus:
- EG: 3-Zimmer-Wohnung, ca. 58 m²
- OG: 3-Zimmer-Wohnung, ca. 58 m²
- DG: 3-Zimmer-Wohnung, ca. 49 m²
Hinterhaus:
- 3 Zimmer, ca. 100 m²
- mietfreie Ăbergabe
- vollständig unterkellert (Vorderhaus, ca. 65 m²) mit Waschraum, Trockenraum, Kellerräumen
- Garage
- Carport
- Stellplatz
EINHEITEN:
Vorderhaus:
- EG: 3-Zimmer-Wohnung, ca. 58 m²
- OG: 3-Zimmer-Wohnung, ca. 58 m²
- DG: 3-Zimmer-Wohnung, ca. 49 m²
Hinterhaus:
- 3 Zimmer, ca. 100 m²
