Alle Fotos anzeigen
MODERNES WOHNEN IN PREUNGESHEIM 🤩 Charmante 4-Zimmer-Wohnung nahe Gravensteiner Platz!
60435 Frankfurt am Main
444.000,00 €
Verkaufspreis
99 m²
Wohnfläche
4 Zimmer
Anzahl Zimmer
Objektbeschreibung
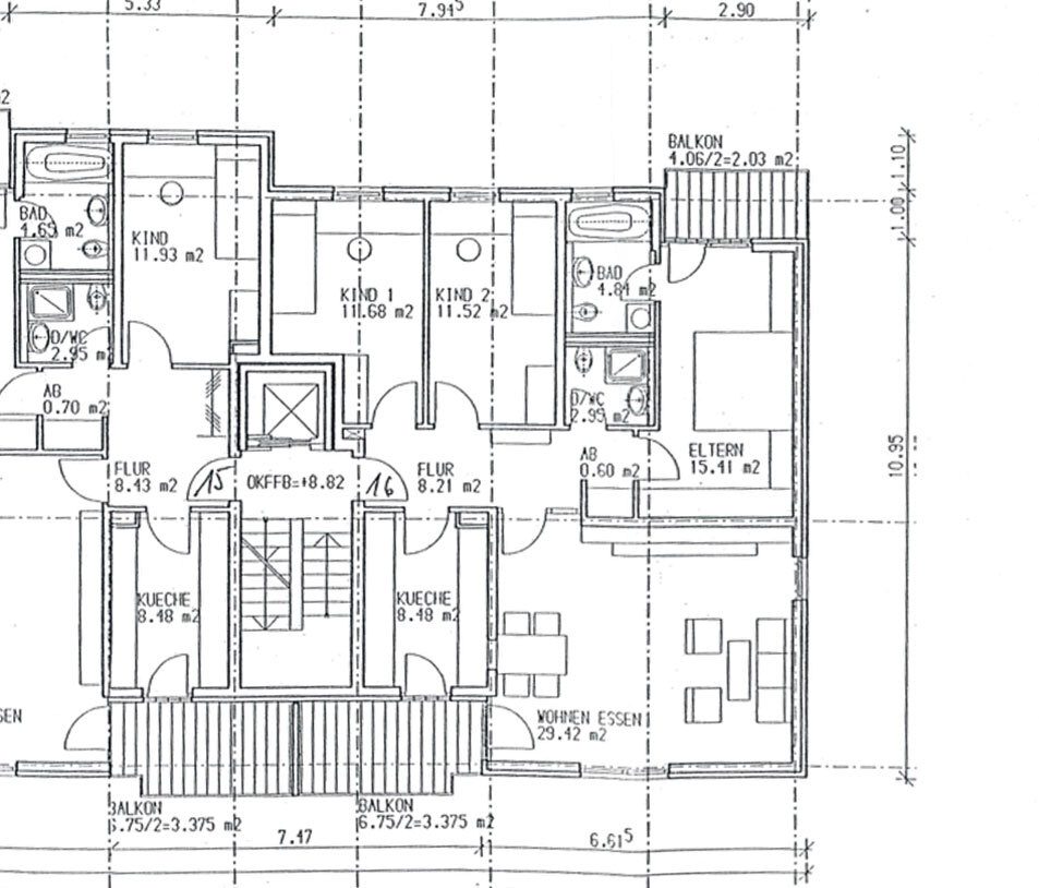
Willkommen in Ihrem neuen Zuhause in ruhiger Lage von Frankfurt-Preungesheim. Diese charmante 4-Zimmer-Wohnung vereint modernes Wohnen und zeitlose Eleganz. Sie befindet sich im 2. Obergeschoss eines gepflegten Mehrfamilienhauses und bietet mit einer großzügigen Wohnfläche von ca. 99 m² Platz für die ganze Familie.
Beim Betreten der Wohnung werden Sie von einem hellen Flur empfangen, von dem Sie Zugang zu allen Räumlichkeiten haben. Das Herzstück der Wohnung ist das großzügige Wohnzimmer. Die bodentiefen Fenster und der hochwertige Parkettboden sorgen hier für ein helles, einladendes Wohnambiente. Ein weiteres Highlight ist das Elternschlafzimmer, das mit einem Badezimmer en suite mit Badewanne sowie eigenem Balkon überzeugt. Die Küche ist mit hochwertigen Einbaugeräten ausgestattet. Hier wird das Kochen zum Erlebnis. Von der Küche haben Sie außerdem Zugang zu einem zweiten Balkon.
Darüber hinaus stehen Ihnen zwei weitere Zimmer zur Verfügung, die ideal als Schlafzimmer, Arbeitszimmer oder Gästezimmer geeignet sind. Ein zusätzliches Duschbad sorgt für weiteren Komfort.
Zur Ausstattung der Wohnung gehört ein praktischer Keller, der Ihnen zusätzlichen Stauraum bietet. Ein Tiefgaragenstellplatz, der für 15.000 € zzgl. zum Kaufpreis erworben wird, sorgt für bequeme Parkmöglichkeiten. Zudem ist das Gebäude mit einem Aufzug ausgestattet, der Ihnen einen komfortablen und barrierefreien Zugang zu Ihrer Wohnung ermöglicht.
Das Haus wurde 2022 modernisiert, inklusive einer Dacherneuerung und neuer Heizkörper im Haupt-Schlafzimmer, was für einen hohen energetischen Standard sorgt und zu einem angenehmen Raumklima beiträgt.
Die Wohnung wird im Rahmen einer Erbpacht erworben. Der Erbzins beläuft sich monatlich auf 116 €. Dieser Betrag ist bereits im Hausgeld enthalten.
Vereinbaren Sie einen Besichtigungstermin und überzeugen Sie sich selbst!
Beim Betreten der Wohnung werden Sie von einem hellen Flur empfangen, von dem Sie Zugang zu allen Räumlichkeiten haben. Das Herzstück der Wohnung ist das großzügige Wohnzimmer. Die bodentiefen Fenster und der hochwertige Parkettboden sorgen hier für ein helles, einladendes Wohnambiente. Ein weiteres Highlight ist das Elternschlafzimmer, das mit einem Badezimmer en suite mit Badewanne sowie eigenem Balkon überzeugt. Die Küche ist mit hochwertigen Einbaugeräten ausgestattet. Hier wird das Kochen zum Erlebnis. Von der Küche haben Sie außerdem Zugang zu einem zweiten Balkon.
Darüber hinaus stehen Ihnen zwei weitere Zimmer zur Verfügung, die ideal als Schlafzimmer, Arbeitszimmer oder Gästezimmer geeignet sind. Ein zusätzliches Duschbad sorgt für weiteren Komfort.
Zur Ausstattung der Wohnung gehört ein praktischer Keller, der Ihnen zusätzlichen Stauraum bietet. Ein Tiefgaragenstellplatz, der für 15.000 € zzgl. zum Kaufpreis erworben wird, sorgt für bequeme Parkmöglichkeiten. Zudem ist das Gebäude mit einem Aufzug ausgestattet, der Ihnen einen komfortablen und barrierefreien Zugang zu Ihrer Wohnung ermöglicht.
Das Haus wurde 2022 modernisiert, inklusive einer Dacherneuerung und neuer Heizkörper im Haupt-Schlafzimmer, was für einen hohen energetischen Standard sorgt und zu einem angenehmen Raumklima beiträgt.
Die Wohnung wird im Rahmen einer Erbpacht erworben. Der Erbzins beläuft sich monatlich auf 116 €. Dieser Betrag ist bereits im Hausgeld enthalten.
Vereinbaren Sie einen Besichtigungstermin und überzeugen Sie sich selbst!
Ausstattung
- doppelt-verglaste Fenster
- bodentiefe Fenster im Wohnzimmer
- Einbauküche
- Echtholz-Parkett
- 2 Balkone
- Tageslicht-Badezimmer mit Wanne
- zusätzliches Duschbad
- Tiefgaragenstellplatz (15.000 € zzgl. zum Kaufpreis)
- Keller
- Aufzug im Haus
MODERNISIERUNGEN
2022: Dacherneuerung / Heizkörper im Schlafzimmer
- bodentiefe Fenster im Wohnzimmer
- Einbauküche
- Echtholz-Parkett
- 2 Balkone
- Tageslicht-Badezimmer mit Wanne
- zusätzliches Duschbad
- Tiefgaragenstellplatz (15.000 € zzgl. zum Kaufpreis)
- Keller
- Aufzug im Haus
MODERNISIERUNGEN
2022: Dacherneuerung / Heizkörper im Schlafzimmer
