Alle Fotos anzeigen
INVESTOREN AUFGEPASST - 4 renditestarke Mehrfamilienhäuser in Kahl am Main!
63796 Kahl am Main
2.599.000,00 €
Verkaufspreis
1966.58 m²
Wohnfläche
20 Zimmer
Anzahl Zimmer
Objektbeschreibung
Dieses vielversprechende Wohnprojekt in Kahl am Main stellt eine attraktive Investitionsmöglichkeit dar.
Derzeit sind 15 der insgesamt 20 Wohneinheiten vermietet, während fünf Einheiten derzeit leerstehen. Die aktuellen Mieteinnahmen belaufen sich auf 88.383 € pro Jahr, wohingegen geplante Maßnahmen eine Steigerung auf 107.703 € pro Jahr ermöglichen.
Das Vorhandensein eines bereits genehmigten KfW-Zuschusses in Höhe von 372.000 € für die Förderung eines KfW-Effizienzhauses unterstreicht das Potenzial dieses Projekts. Eine geplante energetische Sanierung wird die Gesamtfläche des Bestands von derzeit 1342,02 m² auf 1370,74 m² erhöhen.
Die einzelnen Häuser erfahren dabei eine umfassende Modernisierung:
Haus 2 mit 4 Wohneinheiten steigert seine Fläche von 268,44 m² auf 274,76 m².
Haus 4 mit 6 Wohneinheiten erhöht sich von 402,48 m² auf 411,54 m².
Haus 6 mit 6 Wohneinheiten wächst von 402,66 m² auf 409,68 m².
Haus 8 mit 4 Wohneinheiten vergrößert sich von 268,44 m² auf 274,76 m².
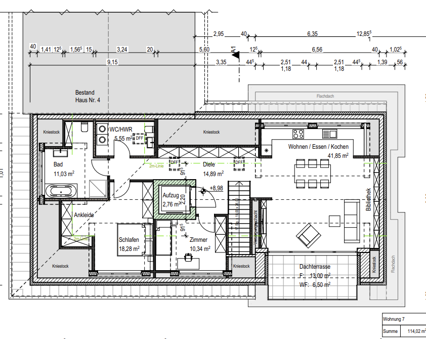
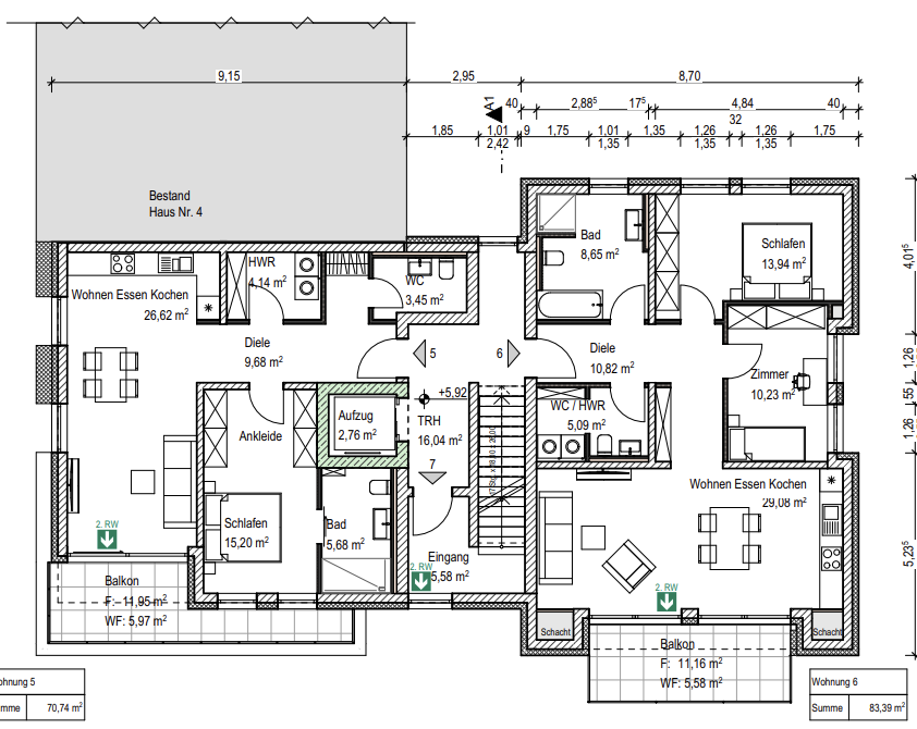
Der Neubau (Haus) umfasst 7 Wohneinheiten auf einer Fläche von 595,94 m².
Die Gesamtwohnfläche des Bestands inklusive des Neubaus beträgt nach Abschluss der energetischen Sanierung 1966,68 m².
Die geschätzten Kosten für die energetische Sanierung belaufen sich auf 995.070,41 € (abzüglich vorhandener Zuschüsse). Zu erwähnen ist, dass noch keine Sanierungsaufträge vergeben wurden, was Flexibilität für eine individuelle Umsetzung ermöglicht.
Dieses Wohnprojekt kombiniert aktuelle Mieteinnahmen mit Potenzialen durch Neuvermietung, energetischer Sanierung und einem bereits genehmigten Förderzuschuss. Es bietet somit eine solide Grundlage für eine renditestarke und nachhaltige Investition.
Derzeit sind 15 der insgesamt 20 Wohneinheiten vermietet, während fünf Einheiten derzeit leerstehen. Die aktuellen Mieteinnahmen belaufen sich auf 88.383 € pro Jahr, wohingegen geplante Maßnahmen eine Steigerung auf 107.703 € pro Jahr ermöglichen.
Das Vorhandensein eines bereits genehmigten KfW-Zuschusses in Höhe von 372.000 € für die Förderung eines KfW-Effizienzhauses unterstreicht das Potenzial dieses Projekts. Eine geplante energetische Sanierung wird die Gesamtfläche des Bestands von derzeit 1342,02 m² auf 1370,74 m² erhöhen.
Die einzelnen Häuser erfahren dabei eine umfassende Modernisierung:
Haus 2 mit 4 Wohneinheiten steigert seine Fläche von 268,44 m² auf 274,76 m².
Haus 4 mit 6 Wohneinheiten erhöht sich von 402,48 m² auf 411,54 m².
Haus 6 mit 6 Wohneinheiten wächst von 402,66 m² auf 409,68 m².
Haus 8 mit 4 Wohneinheiten vergrößert sich von 268,44 m² auf 274,76 m².
Der Neubau (Haus) umfasst 7 Wohneinheiten auf einer Fläche von 595,94 m².
Die Gesamtwohnfläche des Bestands inklusive des Neubaus beträgt nach Abschluss der energetischen Sanierung 1966,68 m².
Die geschätzten Kosten für die energetische Sanierung belaufen sich auf 995.070,41 € (abzüglich vorhandener Zuschüsse). Zu erwähnen ist, dass noch keine Sanierungsaufträge vergeben wurden, was Flexibilität für eine individuelle Umsetzung ermöglicht.
Dieses Wohnprojekt kombiniert aktuelle Mieteinnahmen mit Potenzialen durch Neuvermietung, energetischer Sanierung und einem bereits genehmigten Förderzuschuss. Es bietet somit eine solide Grundlage für eine renditestarke und nachhaltige Investition.
Ausstattung
Mietaufstellung:
15 Einheiten vermietet, 5 Einheiten leerstehend
Mieteinnahmen Ist: 88.383 €/p.A.
Mieteinnahmen Soll: 107.703 €/p.A.
Neuvermietung freier Bestandswohnungen mit 8,50 €/m² = 32.640 €/p.A.
Bereits genehmigter KfW-Zuschuss (Förderung KfW-Effizienzhaus) = 372.000€
Bestand m² vor energetischer Sanierung: 1342,02 m²
Bestand m² nach energetischer Sanierung: 1370,74 m²
Haus 2: 4 Wohneinheiten, 268,44 m², nach energetischer Sanierung 274,76 m²
Haus 4: 6 Wohneinheiten, 402,48 m², nach energetischer Sanierung 411,54 m²
Haus 6: 6 Wohneinheiten, 402,66 m², nach energetischer sanierung 409,68 m²
Haus 8: 4 Wohneinheiten, 268,44 m², nach energetischer Sanierung 274,76 m²
NEUBAU-Haus: 7 Wohneinheiten: 595,94 m²
GESAMT-Wohnfläche: Bestand inkl. Neubau: 1966,68 m²
15 Einheiten vermietet, 5 Einheiten leerstehend
Mieteinnahmen Ist: 88.383 €/p.A.
Mieteinnahmen Soll: 107.703 €/p.A.
Neuvermietung freier Bestandswohnungen mit 8,50 €/m² = 32.640 €/p.A.
Bereits genehmigter KfW-Zuschuss (Förderung KfW-Effizienzhaus) = 372.000€
Bestand m² vor energetischer Sanierung: 1342,02 m²
Bestand m² nach energetischer Sanierung: 1370,74 m²
Haus 2: 4 Wohneinheiten, 268,44 m², nach energetischer Sanierung 274,76 m²
Haus 4: 6 Wohneinheiten, 402,48 m², nach energetischer Sanierung 411,54 m²
Haus 6: 6 Wohneinheiten, 402,66 m², nach energetischer sanierung 409,68 m²
Haus 8: 4 Wohneinheiten, 268,44 m², nach energetischer Sanierung 274,76 m²
NEUBAU-Haus: 7 Wohneinheiten: 595,94 m²
GESAMT-Wohnfläche: Bestand inkl. Neubau: 1966,68 m²
