Alle Fotos anzeigen
FRANKFURTER FAMILIENTRAUM - Freistehendes Einfamilienhaus mit großem Garten in ruhiger Lage!
65931 Frankfurt am Main
675.000,00 €
Verkaufspreis
160 m²
Wohnfläche
6 Zimmer
Anzahl Zimmer
Objektbeschreibung
Dieses freistehende Einfamilienhaus begeistert nicht nur durch seinen zeitlosen Charme, sondern auch mit seinem liebevollen Ambiente.
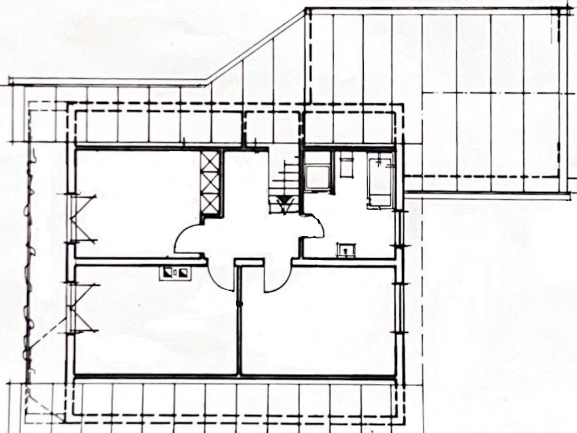
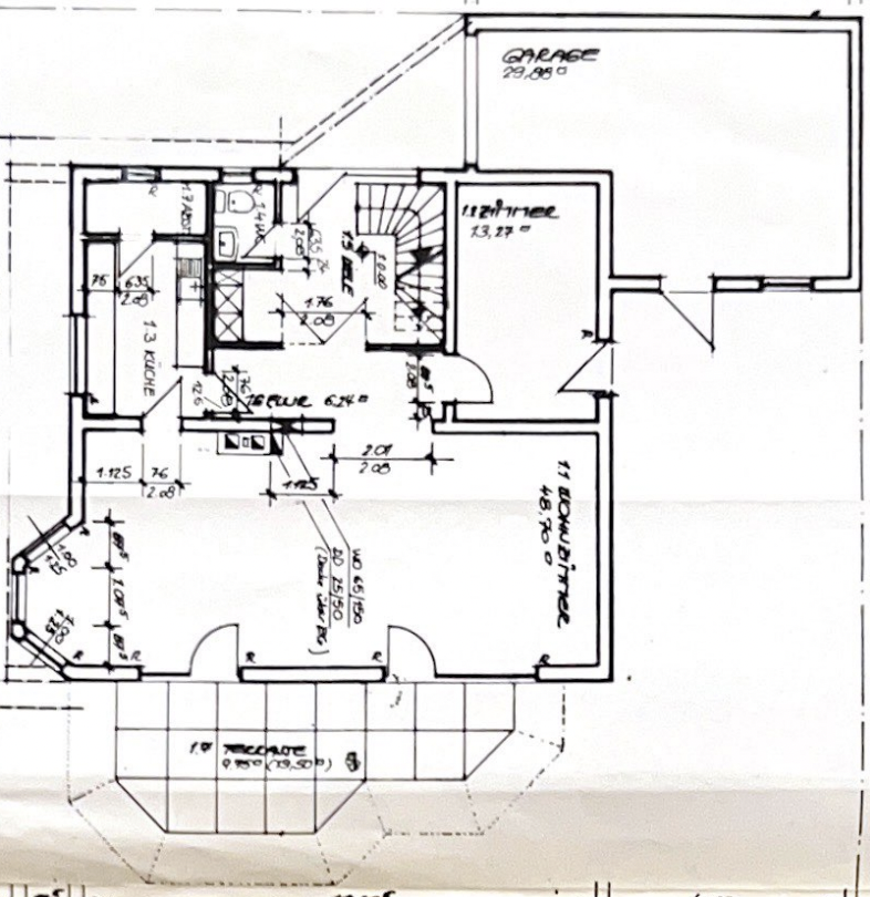
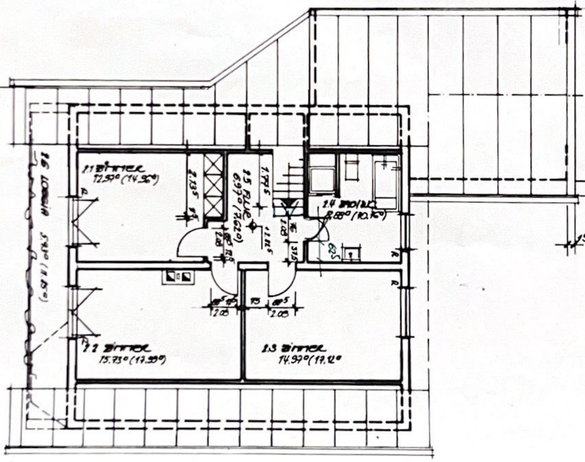
Es liegt in einem ruhigen Wohngebiet und verfügt über eine großzügige Wohnfläche von insgesamt 160 m², verteilt auf drei Etagen. Mit insgesamt 6 Zimmern, einer Küche sowie zwei Badezimmern, bietet es Ihnen ausreichend Platz für individuelle Einrichtungsmöglichkeiten.
Das Konzept dieses Hauses ist gut durchdacht - Der großzügige Wohnbereich bildet das Herzstück des Hauses und ist der perfekte Ort, um gemeinsam zu lachen, zu feiern und kostbare Momente mit Ihren Liebsten zu teilen. Von hier aus gelangen Sie direkt auf die angrenzende Terrasse sowie den Garten. Dieser bietet reichlich Platz für Spiel und Spaß, Grillabende und Entspannung unter freiem Himmel. Ihre Kinder werden diesen Ort lieben!
5 Schlafzimmer schaffen zusätzliche Rückzugsorte und sorgen dafür, dass Sie stets genug Platz für Ihre Kinder und Gäste haben. Der voll ausgebaute Keller und das Dachgeschoss kreieren zusätzlichen Stauraum.
Die begehrte Lage in Frankfurt-Sindlingen rundet dieses Angebot ab. Hier finden Sie alles, was das Herz begehrt - eine ruhige Umgebung, in der Ihre Kinder unbeschwert aufwachsen können, eine gute Anbindung an das öffentliche Verkehrsnetz und eine angenehme Nachbarschaft.
Vereinbaren Sie einen Besichtigungstermin und überzeugen Sie sich selbst!
Es liegt in einem ruhigen Wohngebiet und verfügt über eine großzügige Wohnfläche von insgesamt 160 m², verteilt auf drei Etagen. Mit insgesamt 6 Zimmern, einer Küche sowie zwei Badezimmern, bietet es Ihnen ausreichend Platz für individuelle Einrichtungsmöglichkeiten.
Das Konzept dieses Hauses ist gut durchdacht - Der großzügige Wohnbereich bildet das Herzstück des Hauses und ist der perfekte Ort, um gemeinsam zu lachen, zu feiern und kostbare Momente mit Ihren Liebsten zu teilen. Von hier aus gelangen Sie direkt auf die angrenzende Terrasse sowie den Garten. Dieser bietet reichlich Platz für Spiel und Spaß, Grillabende und Entspannung unter freiem Himmel. Ihre Kinder werden diesen Ort lieben!
5 Schlafzimmer schaffen zusätzliche Rückzugsorte und sorgen dafür, dass Sie stets genug Platz für Ihre Kinder und Gäste haben. Der voll ausgebaute Keller und das Dachgeschoss kreieren zusätzlichen Stauraum.
Die begehrte Lage in Frankfurt-Sindlingen rundet dieses Angebot ab. Hier finden Sie alles, was das Herz begehrt - eine ruhige Umgebung, in der Ihre Kinder unbeschwert aufwachsen können, eine gute Anbindung an das öffentliche Verkehrsnetz und eine angenehme Nachbarschaft.
Vereinbaren Sie einen Besichtigungstermin und überzeugen Sie sich selbst!
Ausstattung
- doppelt-verglaste Fenster
- Klimaanlage im Wohnzimmer
- Tageslicht-Badezimmer mit Dusche und Wanne
- Gäste-WC
- Kachelofen
- Waschküche
- Einbauküche
- voll ausgebauter Keller
- Balkon
- Terrasse
- großer Garten
- Garage
- 2 Stellplätze
- massive Bauweise
Modernisierungen:
- Gäste-WC (2023)
- Fassade (2017)
- Klimaanlage im Wohnzimmer
- Tageslicht-Badezimmer mit Dusche und Wanne
- Gäste-WC
- Kachelofen
- Waschküche
- Einbauküche
- voll ausgebauter Keller
- Balkon
- Terrasse
- großer Garten
- Garage
- 2 Stellplätze
- massive Bauweise
Modernisierungen:
- Gäste-WC (2023)
- Fassade (2017)
